Lusciano, Via della Repubblica, si propongono QUADRILOCALI e MANSARDE di nuova costruzione. Ref. 9V8GUUNC
DESCRIZIONE:
In un elegante mini condominio di nuova realizzazione si propongono diverse unità abitative, per un totale di 8 appartamenti così suddivisi: 2 al piano terra, 2 al primo piano, 2 al secondo piano e 2 mansarde all’ultimo piano.
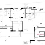
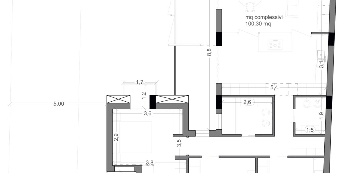
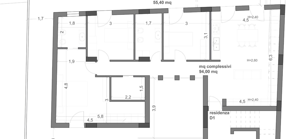
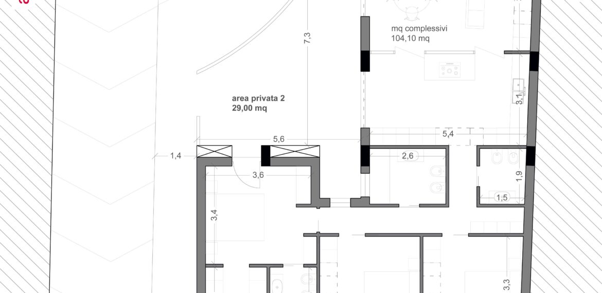
Le soluzioni al piano terra, primo e secondo piano sono appartamenti di 100 mq, progettati con una distribuzione moderna e funzionale: luminoso salone con cucina living, 3 ampie camere da letto di cui una dotata di bagno privato, 3 bagni complessivi e lavanderia, per garantire massimo comfort nella quotidianità.
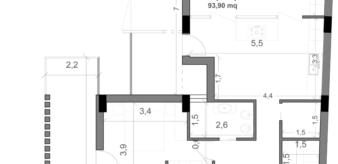
Le mansarde, invece, misurano 93 mq e sono composte da salone, cucina, 2 camere da letto, 2 bagni e lavanderia.
Fiore all’occhiello degli immobili sono i 2 terrazzi, rispettivamente di 25 mq e 20 mq, veri spazi all’aperto dove rilassarsi, creare una zona lounge o vivere momenti in compagnia.
Completa ogni soluzione un box auto, selezionabile in diverse metrature da 20 a 60 mq, così da scegliere lo spazio ideale in base alle proprie esigenze.
CARATTERISTICHE:
Le abitazioni sono attualmente in costruzione e saranno pronte entro 6 mesi, rifinite con uno stile moderno, elegante e di alta qualità, ideale per chi desidera una casa nuova e personalizzabile.
All’interno dello stabile sono disponibili più tipologie, distribuite tra piano terra, primo, secondo e mansarde, così da offrire la possibilità di scegliere la soluzione più adatta alle proprie necessità.
Il costo varia in funzione della tipologia selezionata e della dimensione del box auto scelto.
La zona è in forte espansione e ottimamente collegata all’Asse Mediano, garantendo rapidità negli spostamenti e un contesto residenziale comodo e strategico.
Gli appartamenti sono dotati di climatizzatori nella zona giorno e nella zona notte, garantendo comfort in ogni stagione, oltre a un sistema antifurto antintrusione con sensori volumetrici e infrarossi per la massima sicurezza. Il complesso è servito da ascensore e dispone di box auto al piano S1.
Con una classe energetica A4, ogni soluzione offre efficienza, modernità ed eco-sostenibilità.
Chiamaci e comunica il codice di riferimento: 9V8GUUNC, grazie!
Per ulteriori informazioni chiamaci ORA!
Agenzia TOUCHCASA SERVIZI IMMOBILIARI – 0818154055
Stiamo cercando nuove risorse da inserire nel nostro team!
Hai voglia di metterti in gioco in un ambiente dinamico, stimolante e ricco di sfide?
Siamo alla ricerca di agenti immobiliari, anche alla prima esperienza!
Offriamo:
– Formazione completa
– Affiancamento costante
– Tutti gli strumenti necessari per raggiungere i tuoi obiettivi
– Concrete opportunità di crescita professionale
Se sei motivato, ambizioso e desideri costruire una carriera nel settore immobiliare, questa è la tua occasione!
Candidati ora e unisciti a noi! Invia il tuo cv a: info@touchcasa.it
Ape: G, Ipe: 175
Via Pastore - Aversa (CE)
Via Di Jasi - Aversa (CE)
Via P. Nenni - Lusciano (CE)
Via Michelangelo - Aversa (CE)